Menu

Description du bien immobilier

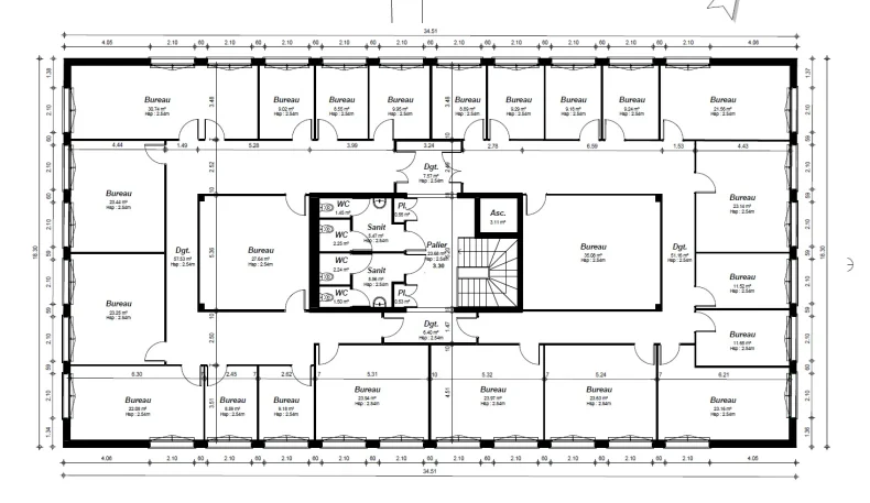
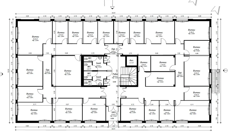
Un immeuble de 2010 à usage de bureaux sur trois niveaux comprenant : - au rez-de-jardin : sas d'entrée, hall, dégagement, sanitaires, ascenseur, 11 bureaux, 1 local SE, 1 local archives, 1 local formation info, 1 grande salle de conférence séparée par une cloison amovible, 1 local syndical, 1 accueil non cloisonné, 1 local serveur TGBT et 1 local reprographie ; - au rez-de-chaussée : sas d'entrée, hall, dégagements, sanitaires, ascenseur, 21 bureaux, 1 local archives + reprographie, 1 accueil non cloisonné + zone d'attente, 1 local machine courrier, 1 local SI ; - à l'étage : sas d'entrée, hall, dégagements, sanitaires, ascenseur, 22 bureaux, 1 salle de réunion, 1 local archives + reprographie. - les voies de desserte du bâtiment et ses équipements ; - les espaces verts ; - les canalisations et réseaux divers ; - 38 places de stationnement non individualisées situées au pourtour du bâtiment en extérieur. Actuellement 1er étage loué, bail en cours depuis le 07/11/25 bail de 9ans, loyer annuel actuel HT 42 978€ "Les informations sur les risques auxquels ce bien est exposé sont disponibles sur le site Géorisques : https://www.georisques.gouv.fr" Cet immeuble vous est proposé par l'agence Les Clefs de l'Immobilier. Contactez-nous par téléphone au 03.26.40.39.39 ou sur notre site internet www.lesclefsdelimmobilier.fr.

Photosà la une

Immeuble  pièces à Chalons en champagne - photo 1
Immeuble  pièces à Chalons en champagne - photo 2
Immeuble  pièces à Chalons en champagne - photo 3

Biens similaires à CHALONS EN CHAMPAGNE